|
|
| |
MARINE DOCK SYSTEMS
45 Wellington Street Riverstone N.S.W 2765 Australia Ph: +61 2 9627 5577
26 Corbould Rd Coolum Beach Qld 4573 Australia Ph: +61 7 5324 1557
Home 
Email 
Enquiry  Links
| |
|
FLOATS
Hrdrostatic graph 333 litre float
Hrdrostatic graph 550,650,900,1200,2000 float
Pontoons with 650 Litre Floats
Drawing a4-0330 Pontoon 3.7 mtr x 2.46 (4 x 650 Litre Floats)
Drawing a4-0718 Pontoon 3.7 mtr x 3.5 (4 x 650 Litre Floats) with ramp cut out.
Drawing a4-0540 Pontoon 3.7 mtr x 3.67 (4 x 650 Litre Floats)
Drawing a4-0643 Pontoon 5.2 mtr x 2.5 (6 x 650 Litre Floats)
Drawing a4-0700 Pontoon 6 mtr x 1.55 (4 x 650 Litre Floats)
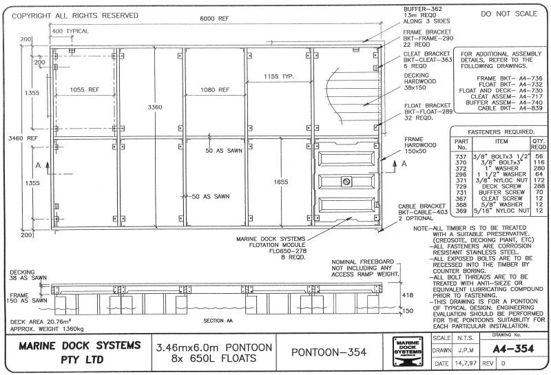
Drawing a4-0354 Pontoon 6 mtr x 3.46 (8 x 650 Litre Floats)
Drawing a4-0587 Pontoon 8 mtr x 1.5 (6 x 650 Litre Floats)
Pontoons with 900 Litre Floats
Drawing a4-0719 Pontoon 3.1 mtr x 4.5 (4 x 900 L and 1 x 1200 L Floats) with ramp cut out.
a4-1852 9.6mtr x 1.3 mtr marina finger - Alloy frame
Pontoons with 1200 Litre Floats
Drawing a4-0311 Pontoon 6 mtr x 2.05 (4 x 1200 Litre Floats) Marina Walkway
Drawing a4-0456 Pontoon 6.67 mtr x 3.65 (6, 9, 12 x 1200 Litre Floats)
a4-0311 - Pontoon 6m x 2m Timber main walkway
a4-1584 Pontoon 6m x 3m alloy frame timber deck
a4-1916 9m x 2.1m walkway alloy frame timber deck
a4-2466 5m x 3m alloy frame timber deck
a4-2493 4m x 3m alloy frame timber deck
a4-3227 4.2m x 2.45m alloy frame timber deck
a4-2901 4.5m x 2.5m pontoon with cutout alloy frame timber deck
Ramps
Drawing a4-0527 Timber 6 mtr x 1.2 Ramp 4000 Timber 4 mtr x 1.2
Drawing a4-0517 Timber 6 mtr x 3
Industrial Pump Pontoons
Drawing a4-2844 3.3 mtr x 1.5 - load capacity = 600kg
Drawing a4-2201 5.1 mtr x 3.65 - load capacity = 2000kg
Drawing a4-2881 4.35 mtr x 3.4 - load capacity = 2900kg
Drawing a4-2868 4.5 mtr x 3.1 - load capacity = 1900kg
Sludge Pontoons
Drawing a4-2807 6.2 mtr x 3.4 - load capacity = 3000kg
Drawing a4-2869 6.5 mtr x 4.9 - load capacity = 3600kg
Mixer Pontoons
Drawing a4-3203 Special mixer pontoon
Drawing a4-3034 Work platform 4.5 mtr x 2.7 (with handrail)
MOVING CRAFT
Drawing a4-1893 3.4 Mtrs Long x 2mtr wide
Drawing a4-1463 4.6 Mtrs Long x 2.5mtr wide
Drawing a4-2579x 4.6 Mtrs Long x 2.5mtr wide Model with handrail
Drawing a4-0775 6.9 Mtrs Long x 2.5mtr wide
Outboard Motor Bracket
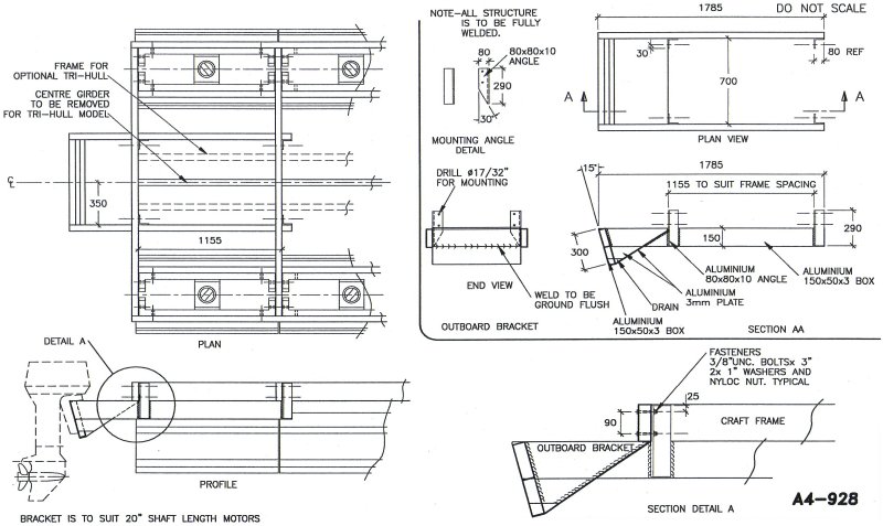
Drawing a4-0928
Parts
Drawing a4-0717 Cleat-361 Assembly detail
Drawing a4-0730 Float and Deck Assembly detail
Drawing a4-0732 Float and Deck Assembly detail #2
Drawing a4-0739 Frame Assembly detail
Drawing a4-0826 Ramp hinge support detail
a4-0184 - 333 Litre float
a4-0187 - 230 Litre Marker Bouy
a4-0217 - Hrdrostatic graph
a4-0233 - Moving craft 6.9mtr. aluminium frame
a4-0278 - 650 Litre float
a4-0279 - 900 Litre float

a4-0289 - Float bracket
a4-0290 - Frame bracket large
a4-0291 - Frame bracket small
a4-0301 - Comtor rubber 50mm
a4-0303 - Comtor washer
a4-0306 - 333 Nose Cone

a4-0311 - Timber walkway 6mtr x 2mtr
a4-0330 - Residential timber pontoon 3.7 mtr x 2.46 mtr
a4-0362 - Small buffer "P" section

a4-0373 - Large buffer "D" section
a4-0382 - Pile caps
a4-0400 - Comtor Unit

a4-0456 - Pontoon 6.7m x 3.6m alloy frame timber deck
a4-0527 - Timber ramp 6 mtr x 1.2
a4-0539 - Pile Buffer 539
a4-0643 - Pontoon 5.2 mtr x 2.5 (6 x 650 Litre Floats)
a4-0700 - Pontoon 6 mtr x 1.55 (4 x 650 Litre Floats)

a4-0719 - Pontoon with cut out

a4-0730 - Float and Deck Assembly detail
a4-0736 - Frame assembly detail
a4-0738 - Marina layout P.A.C
a4-0740 - Buffer 362 assembly detail
a4-0743 - Comtor assembly detail

a4-0759 - Buffer 373 assembly detail
a4-0769 - 9m x 1.4m Trussed alloy timber ramp
a4-0774 - 333 Litre float and Nose Cone assembly detail
a4-0826 - Ramp hinge support Assembly detail
a4-0856 - 2.5m x 5m Alloy timber pontoon
a4-0882 - Typical pontoon installation options
a4-0919 - 4.2 mtr x 2.6 - Water supply pontoon
a4-0928 - Moving Craft Outboard Motor Bracket
a4-0930 - Dry Dock Pontoon
a4-0949 - Moving craft Frame detail 8.1m x 3.1m wide
a4-1052 - 550 Litre float

a4-1055 - Berowra waters boat shed layout
a4-1076 - Seagrass jetty section 6m x 1.2m
a4-1171 - Hawkesbury Congo Layout
a4-1180 - Security Gate Frame Detail

a4-1316 - 8.5m x 1.25m Trussed alloy timber ramp
a4-1365 - 4.5m x 1.55m Alloy timber walway pontoon (3 x 650 Litre Floats)
a4-1366 - 4.5m x 1.25m Timber walway pontoon (2 x 650 Litre Floats)

a4-1489 - Pontoon 6m x 2.05m alloy frame timber deck (4 x 1200 ltre floats
a4-1502 - Comtor Assembly detail weld on
a4-1503 - Float and Deck Assembly weld on
a4-1510 - Newport Arms Layout
a4-1515 - 300mm Cleat installation detail
a4-1548 - Star Mooring Concept Layout
a4-1558 - Pontoon Float Bracket Weld On
a4-1575 - 4m x 1.5m Trussed alloy timber ramp
a4-1577 - Wheel Detail Trussed alloy timber ramp

a4-1584 - Pontoon 6m x 3m alloy frame timber deck (6 x 1200 ltre floats

a4-1600 - Pontoon 7.45m x 2.05m alloy frame timber deck (6 x 1200 ltre floats
a4-1639 - 6m x 1.8m Alloy timber ramp
a4-1763 - 4.85m x 4.06 m pump pontoon

a4-1807 - Pontoon 4.45m x 3m alloy frame timber deck (4 x 1200 ltre floats)
a4-1810 Sludge Lagoon pontoon
a4-1810-2 Sludge pontoon with pump and mixer mast
a4-1840 - Moving Craft 4.6m x 2.4m Aluminium frame detail

a4-1850 - Pontoon 5.5m x 2.5m alloy frame timber deck (4 x 1200 ltre floats)

A4-1852 - Pontoon 9.6m x 1.35m alloy frame timber deck (4 x 1200 ltre floats)
a4-1852 - Pontoon 9.6m x 1.35m alloy timber finger pontoon (4 x 1200 litre floats)
a4-1877 - Comtor Assembly high mount
a4-1907 - main walkway end detail - services
a4-1908 - 300mm Cleat installation alloy frame
a4-1913 main walkway 2.1M PONTOON SECTION
a4-1914 - Pontoon 6m x 2.05m alloy frame timber deck - services
a4-1916 - Pontoon 8.9m x 2.05m alloy frame timber deck - services
a4-1917 - Pontoon 7.45m x 2.05m alloy frame timber deck - services
a4-1929 - Ramp Hinge Detail / Trussed alloy timber decking.
a4-1930 - 8m x 1.2m Trussed alloy mesh ramp
a4-1940 - Trussed alloy timber ramp - 6mtr X 1.2mtr
a4-1958 - Pontoon 4.7m x 2.5m alloy frame timber deck (4 x 1200 ltre floats)
a4-2111 - Dawn Frazer Swimming Pool Brackat
a4-2174 - Pontoon 6m x 2.05m alloy frame timber deck (4 x 1200 ltre floats)
a4-2197 - WP-2197 Wear strip 90x25 HDPE a4-2197
a4-2316 Hose Floats 100mm
a4-2411 - pump pontoon 2 x 1200L - no skid
a4-2423 - submersible pump pontoon 2 x 1200L
a4-2446 - Pontoon 5m x 3m alloy frame timber deck - 4 x 1200 Floats
a4-2466 - 5 x 3 ALLOY TIMBER PONTOON - 4 x 1200 Floats
a4-2492 - Pump pontoon Arrangment
a4-2493 - Pontoon 4.1m x 3m alloy frame timber deck - 4 x 1200 Floats
a4-2517 - Submersible Pump pontoon - 1 x 650
a4-2532 - Aluminium Ramp 14mtr x 0.9 Industrial
a4-2537 - Pontoon Alloy frame timber deck 4.5 mtr x 2.5 mtr
a4-2577 - Aluminium Ramp 6mtr x 1.2 timber decking
a4-2592 - Pontoon 6m x 2.5m alloy frame timber deck - 6 x 1200 Floats
a4-2600 - Aluminium Framed Timber deck Pontoon 3.6 mtrs x 2.45 wide
a4-2704 - Concrete pontoon 4.5 mtr x 2.5 mtr Swimming concept
a4-2707 - House Boat Frame 8.7 mtrs long x 4.8 wide
a4-2708 - House Boat 8.7 mtrs long x 4.8 wide with floats
a4-2709 - Pontoon Aluminium frame timber decking 6 mtr x 2 mtr - 4 x 1200 litre
a4-2710 - Marina Finger Pontoon 9.1 mtrs long x 1 mtr wide
a4-2711 - Marina Finger Pontoon 7.8 mtrs long x 1 mtr wide
a4-2712 - Concrete Pontoon and Ramp Kanagaroo Point Arrangment
a4-2713 - Concrete Pontoon Kanagaroo Point Arrangment
a4-2714 - Concrete Pontoon Kanagaroo Point Section
a4-2715 - Aluminium Ramp 12 mtrs x 1.2 wide Kanagaroo Point
a4-2719 - Timber deck and frame Pontoon 4.5 mtrs x 2.45 wide
a4-2717 - Submersable Pump Pontoon - 2 x 550 Litre floats
a4-2718 - Pontoon 10 x 3.7 mtrs Timber Frame Timber Deck - 12 x 1200 litre Floats
a4-2717 - Submersible Pump pontoon 2 x 550

a4-2719 - Pontoon 4.5 mtr x 2.45 Timber Frame Timber Deck
a4-2720 - Aluminium Ramp 20 mtr x 0.9 wide
a4-2721 - Bracket to suit - Aluminium Ramp 20 mtr x 0.9 wide
a4-2722 - Warragamba Dam - Lifting relocation beam Application
a4-2723 - Warragamba Dam - Lifting relocation beam
a4-2724 - Ramp Hinge Detail - suit timber domestic
a4-2751 - Pump pontoon - Skid mounted 4.8m x 3.65m
a4-2790 - Aluminium Framed Timber deck Pontoon 3.6 mtrs x 2.45 wide, with cut out
a4-2816 - Aluminium Ramp 12mtr x 0.9 Industrial
a4-2821 - Cambered Aluminium Ramp 6mtr x 1.2
a4-2863-2 - pump pontoon 2 x 650L
a4-2863 - pump pontoon 2 x 650L

A4-2881 - Work platform
a4-2900 - Aluminium Ramp 6mtr x 0.6 with 333 litre float attached
a4-2901 - Pontoon 4.5m x 2.55m alloy frame timber deck
a4-2902 - Aluminium Ramp 6mtr x 1.2 with trussed handrails
a4-2903 - Ramp Hinge Bracket suit ramp 2902
a4-2906 - Concrete Pontoon System
a4-2907 - Portable Folding Aluminium Ramp 3.5 mtrs x 0.6
a4-2910 - Boat Ramp Pontoon 20 mtrs x 2.15 wide
a4-2911 - Aluminium Framed Timber deck Pontoon 3.6 mtrs x 2.5 wide, with cut out on side
a4-2912 - 100mm Bracket detail suit timber frame BKT-FRAME-291
a4-2914 - 185 litre float
a4-2914 - 185 litre float 12.5 mtr x 1.5mtr Narawang Wetlands
a4-2916 - Pile Guide suit 100mm RHS
a4-2917 - Concrete Pontoon System 20 mtr x 2.6mtr Geelong
a4-2919 - Bicentennial Park Teaching Square - 900 litrs
a4-2921 - Bracket Assembly Float Assembly 289
a4-2922 - Bicentennial Park Teaching Square - Custom Float
a4-2923 - Bicentennial Park Teaching Square - Construction Details
a4-2924 - Bicentennial Park Teaching Square - Construction Details
a4-2931 - Sludge Pontoon Deck Plate Infills - Job number 229
a4-2932 - Sludge Pontoon Deck Plate Infills - Job number 235
a4-2933 - Sludge / Mixer and Pump Pontoon
a4-2937 - Pontoon 3.6m x 2.8m alloy frame timber deck - 4 x 650 Floats
a4-2939 - Pontoon 5m x 2.55m alloy frame timber deck - 4 x 1200 Floats
a4-2940 - Dangar Island Wharf Horsby Council Proposed Concept Pontoon
a4-2943 - Aluminium Timber Ramp 6mtr x 1.2 with optional handrail
a4-2947 - Aluminium Framed Timber deck Pontoon 3.6 mtrs x 2.45 wide, with cut out
a4-2949 - Ramp Hinge Detail suit Tiber Ramp 1.2 mtrs wide
a4-2950 - Aluminium Framed Timber deck Pontoon 6 mtrs x 3.3 L shape
a4-2953 - Ramp Detail Cross Member Bracket Detail
a4-2954 - Cambered Aluminium Timber Ramp 5.1 mtr x 1.3 with Trussed handrails
a4-2955 - Pontoon 4.5m x 3m alloy frame timber deck - 6 x 650 Floats
a4-2956 - Pontoon 8.8m x 2.2m alloy frame timber deck - 6 x 1200 Floats
a4-2957 - Ramp Hinge Detail suit Alloy Ramp 1.8 mtrs wide
a4-2959 - Pump Pontoon 5.1 mtrs x 3.35 wide, Industrial Pontoon
a4-2960 - Pontoon 4.1m x 2.55m alloy frame timber deck with cut out - 4 x 1200 Floats
a4-2961 - Ramp Aluminium Framed Timber 6mtr x 1.2 with transition plate
a4-2962 - Ramp Trussed Aluminium Framed Timber 9 mtr x 1.2 with transition plate
a4-2963 - Pontoon Finger 8.25 x 1.35 alloy frame timber deck - 4 x 1200 Floats
a4-2966 - Concrete Rowing Pontoon 10 mtrs x 2.4
|
|
|